Yueqing Hekao Electric Co., Ltd.
+ Home      + Contact us
 
Home
About us
Products
Services
Contact us
 
  • 1
  • 2
 
ZW7/ZW7A-40.5 Type Outdoor HV AC Vacuum Circuit Breaker
 
ZW7/ZW7A-40.5 Type Outdoor HV AC Vacuum Circuit Breaker

Summary
ZW7/ZW7A-40.5 type outdoor HV AC vacuum circuit breaker is used to make and break load current, overload current and short-circuit current in the power system with rated voltage 40.5kV, three-phase AC 50/60Hz. It is applicable to substations, industrial and mining enterprises, unban and rural electric power networks, especially to the occasions with frequent operation and automatic power distribution networks for power network control and equipment protection. It is a new type of high quality circuit breaker which adopts domestic and foreign advanced technology. So the switch has the advantages of reasonable design, easy assembly, novel appearance, safe and reliable operation, convenient maintenance and long mechanical life. The product conforms to the standards of IEC62271-100 & GB1984: AC high voltage circuit breaker, IEC60694 & GB/T11022: HV general technical requirement of switch and control apparatus.

Ambient conditions
1. Altitude: ≤2000m;
2. Ambient temperature: -40℃~+45℃;diurnal temperature rang ≤25℃;
3. Wind speed: ≤35m/s;
4. Earthquake intensity: ≤grade 8;
5. Relative humidity: monthly average ≤90%; daily average ≤95%;
6. Ice thickness: ≤10mm
7. Pollution degree: ≤Ⅳ(GB5582);
8. Applicable occasions: no fire and explosion danger, no chemical corrosion and no frequent severe vibration.

Model


Technical specification
No. Item Unit Data
1 Rated voltage kV 40.5
2 Rated insulation level 1min P.F
withstand voltage
Dry test 95
Wet test 80
Lighting impulse withstand voltage(peak) 185
3 Rated current A 630、1250、1600、2000
4 Rated short-circuit breaking current kA 20 25 31.5
5 Rated short-circuit making current (peak) 50 63 80
6 Rated operating sequence O-0.3s-CO-180s-CO
7 Rated short-time withstand current kA 20 25 31.5
8 Rated peak withstand current 50 63 80
9 Rated short-circuit duration s 4
10 Rated operating voltage V DC/AC 220
11 Breaking times of rated short-circuit breaking current times 12
12 Complete breaking time ms ≤80
13 Mechanical s life times 10000
14 Average opening speed m/s ≥1.4
15 Average speed of closing ≥0.4
16 Contact close-bouncing time ms ≤5
17 Three-phase opening non-simultaneity ≤2
18 Opening time ms ≤60
19 Closing time ≤90
20 DC resistance for each phase loop μΩ ≤100
21 Phase-to-phase spacing mm 710
22 Allowed accumulative wear thickness for moving and static contacts 3
23 Dimension (length×width×height) 2080×500×2275
24 Contact self-closing pressure N 2500
25 Net weight kg 800/740


Main function features
1. The switch is mainly composed of a vacuum arc-extinguishing chamber, a current transformer, a driving mechanism and an operating mechanism;
2. The overall structure adopts silicon rubber insulator post type, the upper silicon rubber insulator is for built-in vacuum arc-extinguishing chamber and the lower silicon rubber insulator is for supporting the upper one. The three-phase linkage parts and the operating mechanism are installed in a waterproof case. The dynamic end of the arc-extinguishing chamber is linked with the output shaft of the mechanism through insulating rod and crank arm. The current transformer adopts built-out type.
3. The product is newly researched, developed and produced according to the advanced domestic and foreign technologies. It has the advantages of novel structure design, reasonable combination scheme, flexible and convenient operation and long mechanical life. The insulation structure made of new type of insulating material has advantages of good sealing performance, aging resistance, withstanding high voltage, no combustion and no explosion danger.
4. Provided with high precision and high performance CT, the product has the merits of less maintenance, high reliability and strong completeness, as a result, the occupied area and investment for the product can be reduced more.

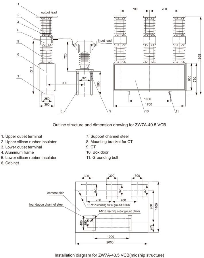
Outline and installation dimension



Technical requirements
1. The length the anchor bolt for the switch embedded in the coment pier must be over 1000m;
2. The length the anchor bolt for the CT embedded in the cement pier must be over 1000m;
3. The height of the cement pier must be 1850mm;
4. The cement pier foundation depth is calculated and determined by the constrution unit;
5. The foundation channel steel for the switch is provided by the construction unit.
 
 
  PRODUCT LIST
 
1  Wall perforated waterproof cover for air conditioner
2  Water drainage pump for air conditioner
3  Indicator Light
4  Push button
5  Modular isolation switch series
6  Solid State Relay
7  Industrial plug and socket
8  Vacuum Circuit Breaker Series
9  Outdoor Load Break Switch Series
10  Intelligent Automation Equipment For Power Grid
11  Outdoor AC High Voltage Disconnect Switdh Series
12  Indoor Load Break Switch Series
13  Indoor AC High Voltage Disconnect Switch Series
14  Insulator Series
15  Drop-out Type Fuse Series
16  Arresters
17  Hot stick/insulated rod/operating rod
18  Ground set/earth rod equipment
19  Ground wire,grounding clamp
20  Copper rod /brass rod
21  Safety helmet
22  Discharge rod lightening rod
 
Copyright © Yueqing Hekao Electric Co., Ltd. All Rights Reserved.
Tel: 0086-577-62890982  Fax: 0086-577-62890992  E-mail:sales@hekaoelectric.com; hekao@hekaoelectric.com Add: Room 203,Buildi